The deadline on plans for a new Chinese ‘super embassy’ in London is looming.
A final decision to approve or deny the application has been delayed by the government a number of times. It was scheduled for next week, but has been pushed back to 10 December.
Though the new deadline is “not legally binding” a government spokesman said.
Beijing resubmitted a previously rejected planning application for the site near the Tower of London when Sir Keir Starmer’s Labour government was elected in 2024.
The government has since demanded an explanation for why some sections of the building plans have been redacted – something anti-China activists suggest could be a tactic to hide facilities for detaining opponents of the Chinese Communist Party (CCP).
Politics latest: Follow live updates
China says it has “followed the customary diplomatic practices, as well as necessary protocol and procedures” and that the new embassy is being proposed in the spirit of “promoting understanding and friendship”.
Here is everything we know so far.
Where is it – and when was it proposed?
China bought Royal Mint Court for £255m in 2018. It was built over 200 years ago to produce new British coins, but has remained empty since the last gold sovereign was struck there in 1975.
Previously, it had been earmarked for redevelopment as a leisure complex and was home to the Royal Mint between 1809 and 1967.
A planning application to move China’s current embassy near Regent’s Park to the new site, which sits between the financial districts of the City of London and Canary Wharf, was rejected by Tower Hamlets Council in 2022.
It was resubmitted in July 2024, two weeks after Labour won the general election, with Chinese President Xi Jinping asking Sir Keir to intervene personally.
Please use Chrome browser for a more accessible video player
10:12
Will China ‘super embassy’ be built?
In August that year, the application was “called in” by then housing secretary Angela Rayner, meaning central government took oversight of it from the local council. Building plans were also submitted.
Ms Rayner announced in August that she was delaying approval of the application over part of the building plans being redacted.
The decision is now up to new Housing Secretary Steve Reed, who extended the deadline for a final decision to be made.
Less than a week before the decision was expected to be announced on 21 October, he said ministers needed more time to discuss the matter.
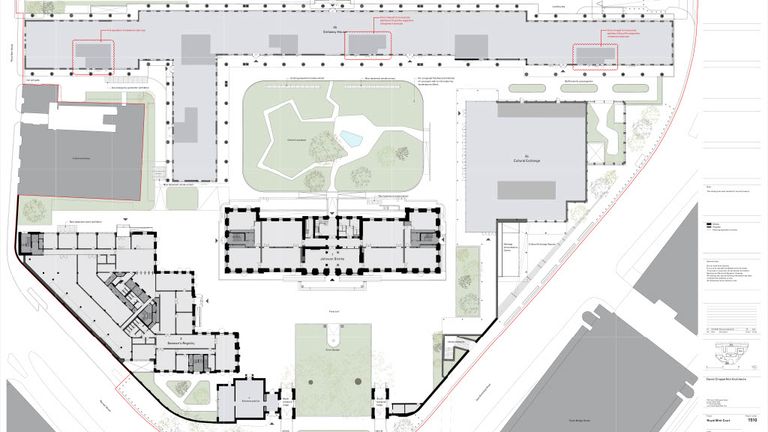
Greyed-out areas with no clear use
There have been large-scale protests against the embassy and outrage when China refused to explain why large parts of the plans were greyed out.
A public inquiry was held in front of the government’s Planning Inspectorate in February and the findings were presented to Ms Rayner to make a final decision.

An aerial view of how the site will look. Pic: David Chipperfield Architects
She demanded an explanation about rooms in the basement of the building that were “greyed out” in the application.
Hong Kongers exiled in the UK over Chinese allegations of national security crimes have expressed fears that such rooms might be used to detain dissidents.
One, Carmen Lau, told Sky’s Henry Vaughan she believes the embassy would become a “hub of transnational repression” and said she is scared of being held there after a Hong Kong pro-democracy protester was forcibly taken inside the Chinese consulate in Manchester in 2022.

The basements in most of the buildings have been greyed out ‘for security reasons’. Pic: David Chipperfield Architects

Much of the ground floor plans are also greyed out ‘for security reasons’. Pic: David Chipperfield Architects
In a letter sent to Ms Lau’s neighbours, Hong Kong Police said a HK$1m bounty was on offer to anyone who could provide information or “take her to Chinese embassy”.
In evidence to the Planning Inspectorate inquiry, Simon Cheng, founder of Hongkongers in Britain, said: “China has been accused of operating illegal ‘overseas police stations’ to silence political opponents and even force them back to China.”
He claimed that “approving this embassy risks legitimising and enabling such activities on British soil”.
And during a debate on the plans in parliament, Liberal Democrat MP Ben Maguire claimed the embassy plans could “seriously increase China’s capacity for surveillance, intimidation and transnational repression against Hong Kong activists here in London”.
Please use Chrome browser for a more accessible video player
4:30
Hong Kong exiles speak out
The Chinese embassy in London responded to Ms Rayner’s letter in August, expressing “serious concern” over the delay in approving its plans and saying foreign countries have an “international obligation” to support the construction of diplomatic premises.
Read more:
‘I don’t feel safe in the UK’, say Hongkongers
Beijing officials also claimed that the “internal functional layout for embassy projects is different” from other projects, pointing out that plans for the new US-UK embassy at Nine Elms did not include internal layouts.
DP9, the planning consultancy commissioned by the Chinese government, said it would be “inappropriate” to submit complete floor plans.

Protests outside the site of the proposed ‘super embassy’ in London. Pic: Reuters
Other security concerns
Royal Mint Court used to have a trading floor, which was wired to other financial institutions, and is situated near the City of London’s telephone exchange.
China-critic Conservative MP Sir Iain Duncan Smith has said such infrastructure could easily be used for Chinese espionage.
According to a report in The Sunday Times, the White House has warned the UK government against approving the embassy on similar grounds.

An aerial view of the current Royal Mint Court
Shadow home secretary Chris Philp echoed America’s concerns, telling Sky News: “I agree with the United States. We should not be allowing the Chinese to build the super embassy. It is likely to become a base for their pan-European espionage activities.”
The government is also concerned about another part of the embassy site China proposes to keep open – for the public to visit the ruins of a Cistercian abbey and a Chinese cultural centre.
The Home and Foreign Offices said the area poses a “specific public order and national security risks” because, although members of the public would be allowed in, police and the emergency services would not be due to its “diplomatic inviolability”.

The Cistercian ruins has caused a major issue in the planning application. Pic David Chipperfield Architects
China has since claimed it would allow first responders onto the site if anyone got into difficulty, as a planning condition, but critics remain sceptical.
Residents of flats located within Royal Mint Court are also against the plans as they have concerns that their new landlords will eventually force them out of their homes.
Other people living nearby fear the security risk of regular anti-China protests at the site, with two taking place earlier this year.

There have been multiple protests against the embassy’s development. Pic: PA
What has China said?
China maintains the new embassy is being built to “promote understanding and friendship” with the UK and “develop mutually beneficial cooperation”.
In September, a Chinese embassy spokesperson told Sky News that claims the new embassy poses a potential security risk to the UK are “completely groundless and malicious slander, and we firmly oppose it”.
They added: “Anti-China forces are using security risks as an excuse to interfere with the British government’s consideration over this planning application. This is a despicable move that is unpopular and will not succeed.”
The Chinese embassy in London said in its August statement that planning applications and all necessary protocol have been followed.
The statement said: “The Chinese side urges the UK side to fulfil its obligation and approve the planning application without delay.
“The planning and design of the new Chinese Embassy project is of high quality, which has been well recognised by various professional bodies.
“The planning application has followed the customary diplomatic practices, as well as necessary protocol and procedures.
Read more:
Hong Kong activists’ UK neighbours ‘bribed’ to hand them in
Tories oppose Chinese super embassy
“In our reply to [the Ministry of Housing, Communities & Local Government], we have provided a comprehensive response to the questions concerning the planning application.
“It is an international obligation of the host country to provide support and facilitation for the construction of diplomatic premises. Both China and the UK plan to build new embassies in each other’s capitals.”
China has so far refused permission for a new UK embassy in Beijing.